Jouw mening is belangrijk!

We willen begrijpen waarom klanten nog steeds het contactformulier gebruiken. Help ons en beantwoord 2 korte vragen: Vertel ons jouw mening over het contactformulier.
Beantwoorden
PeterVerheecke
Professional Beetjesweter
Berichten: 8
Alles op zijn plek! Netjes! Mooi, mooi! Primeur!

Thuisnetwerk aanbevelingen

Voor ons nieuwbouwproject moeten we als leken keuzes maken om een zo optimaal mogelijk (1 tot 10 Gbps) netwerk samen te stellen.

Kan iemand ons aanbevelingen doen?

 

Huidige situatie:

- Veel beton & ijzer... (niet ideaal)

- 1 verdiep ondergronds van 80m² (waar de modem van Telenet zal staan) en 2 verdiepen bovengronds (2 maal 80m²).

- 19 maal cat-6A bekabeling (2 per kamer, waarvan 1 voor internet + 1 voor TV-box) + 3 van 19 voor POE camera's.

 

Wat we willen:

- Doordat we leken zijn een goed en stabiel systeem (waarvan wij niets moeten instellen) bv. MESH voor wifi, voor meerdere gebruikers tegelijkertijd.

- Een uitstekende wifi dekking (wifi 6 - AX) zowel ondergronds als op de verdiepingen alsook in de tuin van 240m² (niet onbelangrijk)

- Ik vermoed momenteel een 1 Gbps netwerk om later te kunnen uitbreiden naar een 10 Gbps netwerk (door een te hoge aanschafkost van 10 Gbps nu?)

- NAS kunnen aansluiten om muziek/video te kunnen delen over ons netwerk.

- Computers, laptops, printer, tablets, Gsm (alles moet via het netwerk kunnen communiceren)

- Gezien router & switch in de ondergrondse garage komen te staan zal een afgesloten kast (19 inck rack?) beter zijn denk ik ?

- Het mag geen duizenden euro's kosten 😉

 

Wat hebben we nodig?

- van Telenet: een modem only? of toch een alles in 1? (we willen ook op wifi kunnen onderweg (telenetwifree) of heb je dat niet meer nodig met een "ONE" abonnement?

- Een switch of een router? (hoeveel doorvoervermogen?)

- POE, POE+, POE++ ? (welk vermogen POE budget moet je hebben?)

- Accesspoints (hoeveelheid? 3 veronderstel ik? voor mesh netwerk)

- Merken van toestellen, modellen die we zouden nodig hebben en ook de kostprijs natuurlijk...

 

Alvast bedankt voor de tips en jullie tijd!

0 Likes
13 reacties
Steven-E
Experienced Meesterweter
Berichten: 2649
Jij bent een pro! Ere-Krak Krak 2021 Krak 2022

Thuisnetwerk aanbevelingen

Hallo @PeterVerheecke ,

 

  1. Voor jouw situatie: blijf aub weg van Mesh. Mesh toestellen moeten elkaar via WIFI "zien", wat natuurlijk een nadeel is (tenzij je ze bedraad aansluit).
  2. Gebruik zoveel mogelijk UTP kabels (Cat5e of beter nog Cat6) en werk met gewone access-points die je bekabeld aansluit.
  3. Configureer 2 aparte SSID's en dit op elke AP. Een SSID voor de 2,4Ghz band en eentje voor de 5Ghz band.
    Dus op elke AP komen diezelfde 2 SSID's terug, maar je moet ze wel telkens op een ander kanaal configureren, zodat ze elkaar niet storen.
  4. Installeer je AP's in access-point mode, zodat je de Telenet router de DHCP server is voor je netwerk.
    Dat is het eenvoudigste en denk ik aan te raden voor jou als leek 😉
    https://kb.netgear.com/20927/How-do-I-change-my-NETGEAR-router-to-AP-mode
  5. Ga voor de CV8560E modem: een homegateway zonder wifi. Je gaat je eigen wifi beheren op eigen apparatuur. Je wil dus geen wifi van Telenet. Bovendien staat zo'n modem dikwijls op een plaats waar je geen wifi nodig heb (kelder, garage, ...)
  6. Het is handig als je een AP gebruikt die je kan voeden via POE.  Deze hebben doorgaans POE+ nodig.
    802.3af (PoE) is niet voldoende. Zie dus dat je switch of POE-injector 802.3at (PoE+) ondersteunt.
  7. Ik ben fan van Netgear, Ubiquiti ook, maar dat zou ik voor leken niet aanraden omwille van de complexiteit.
    Deze bijv is niet duur, goed en discreet (enkel een UTP kabel nodig)
    https://www.netgear.com/business/wifi/access-points/wax214/
  8. Installeer je AP's op strategische plaatsen zodat ze je hele huis gecoverd is, rekening houdend met je gewapende muren
  9. Hou het zo simpel mogelijk. 
  10. 10 GBbps, dan moet je je switches idealiter via fiber aansluiten.  Dat is heel duur.  Cat6a moet dit ook wel kunnen.
    Je switches moeten dit ook ondersteunen, maar ik zou persoonlijk zorgen dat je cablage klaar is, en voorlopig starten met gigabit switches. Hier een voorbeeld van gigabit  een switch van Netgear die POE+ ondersteunt. Het is ook een smartswitch zodat je eventueel vlans kan configureren. https://www.netgear.com/nl/business/wired/switches/smart/gs310tp/
    Zorg ervoor dat je switch voldoende power kan leveren om al je AP's van stroom te kunnen voorzien.

  Steven-E | Krak
  Ik wil groot zijn in iets kleins
  Vergeet niet om likes te geven en/of als oplossing te markeren.
PeterVerheecke
Professional Beetjesweter
Berichten: 8
Alles op zijn plek! Netjes! Mooi, mooi! Primeur!

Thuisnetwerk aanbevelingen

Bedankt voor je snelle en uitgebreide reply!

 

Een antwoord op jou puntjes:

1. De mesh toestellen kunnen bedraad worden aangesloten.

2. Er liggen per kamer 2 UTP cat 6A kabels klaar.

3. Configureer 2 aparte SSID's (geen idee hoe we dit moeten doen gezien we leken zijn)

4. Installeer je AP's in access-point mode (geen idee hoe) maar bedankt voor de link.

5a. CV8560E modem (dit vraag je bij de installatie van telenet?)

5b. We willen wel wifi in de kelder, gezien er later een home-cinema ruimte inkomt.

6. Switch met POE+ (ok begrijp ik)

7. Netgear WAX214 (AX1800 voldoende? of hoger nemen?)

8. Accesspoints zullen per verdiep in 1 kamer worden geplaatst, gezien er enkel in de kamers UTP ligt en niet in de gang.

9. Simpel (plug & play zou ideaal zijn)

10a. Smartswitch? (Is er een reden waarom je voor zakelijke toestellen kiest?)

10b. vlan's? (geen idee wat dit is gezien we leken zijn)

10c. Netgear GS310TP (deze heeft slechts 8 poorten, maar we hebben 19 kabeltjes?)

10d. Switch met voldoende power. (hoeveel is voldoende voor 3 accesspoints en 3 camera's?)

0 Likes
Steven-E
Experienced Meesterweter
Berichten: 2649
Jij bent een pro! Ere-Krak Krak 2021 Krak 2022

Thuisnetwerk aanbevelingen

1. De mesh toestellen kunnen bedraad worden aangesloten.

Top!

2. Er liggen per kamer 2 UTP cat 6A kabels klaar.

Top!

3. Configureer 2 aparte SSID's (geen idee hoe we dit moeten doen gezien we leken zijn)

Ik zou je wat proberen in te lezen in deze materie. Je hoeft niet te berusten en een leek te blijven 😉
Je toestellen zullen dan 2 netwerken zien, deze van de 2,4Ghz band is trager maar reikt verder. Ideaal voor IOT apparaten zoals draadloze deurbellen en eventueel smartphones.  De 5Ghz band is sneller en ideaal voor laptops. Het snelheidsverschil is aanzienlijk, als je voldoende dekking hebt.

1 SSID heeft het nadeel dat je op voorhand niet weet op welke band je gaat connecteren. De 2,4Ghz is veel gevoeliger voor storingen dan de 5Ghz band, daar wil je met je laptop niet op connecteren.

4. Installeer je AP's in access-point mode (geen idee hoe) maar bedankt voor de link.

Het resultaat is dan dat je 1 IP netwerk hebt zodat elk toestel alles kan bereiken op je interne netwerk, ongeacht op welke AP je connecteert.  Belangrijk voor netwerkprinters oa. Als je je AP in routermodus laat staan (wat dikwijls default zo is ingesteld) kan dat niet. Ik bespaar je de technische details 😉

5a. CV8560E modem (dit vraag je bij de installatie van telenet?)

Ja, of al bij de bestelling aan de telefoon.

5b. We willen wel wifi in de kelder, gezien er later een home-cinema ruimte inkomt.

Zet daar dan ook een eigen AP.

6. Switch met POE+ (ok begrijp ik)

7. Netgear WAX214 (AX1800 voldoende? of hoger nemen?)

Waarom zou je zo'n gedrocht nemen?  Dit toestel is vooral bedoeld om als router te fungeren.
Deze kan je ook niet voeden met POE, dat was toch de bedoeling niet?

8. Accesspoints zullen per verdiep in 1 kamer worden geplaatst, gezien er enkel in de kamers UTP ligt en niet in de gang.

Neem dan een kamer die zo centraal mogelijk ligt zodat je het hele verdiep covert.

9. Simpel (plug & play zou ideaal zijn)

Het nadeel van plug & play is dat je niets instelt. En dat is voor WIFI met meerdere AP's nu net echt wel nodig. Doe je dit niet goed, dan heb je slechte wifi, ook met duur materiaal. Je moet ervoor zorgen dat elke AP op een apart kanaal uitzendt, zoniet gaan ze elkaar storen en dat is nefast voor de signaalkwaliteit. Dus hier zou ik zeker aanraden om wat informatie op te zoeken. Het zal lonen.

10a. Smartswitch? (Is er een reden waarom je voor zakelijke toestellen kiest?)

Dit is helemaal geen zakelijke switch, maar als je POE wil dan ga je meestal ook naar smart switches.

10b. vlan's? (geen idee wat dit is gezien we leken zijn)

Nevermind niet nodig.

10c. Netgear GS310TP (deze heeft slechts 8 poorten, maar we hebben 19 kabeltjes?)

Zoek dan een switch met 24 poorten en POE+ support

10d. Switch met voldoende power. (hoeveel is voldoende voor 3 accesspoints en 3 camera's?)

Bekijk de datasheets van je AP's en camera's en noteer de powervereisten. Die tel je allemaal op, en dan weet je het.


  Steven-E | Krak
  Ik wil groot zijn in iets kleins
  Vergeet niet om likes te geven en/of als oplossing te markeren.
StefaanH
Professional Superweter
Berichten: 5350
Dat verdient een trofee! Organisatietalent! Een echt antwoordkanon jij! Krak 2018

Thuisnetwerk aanbevelingen

@PeterVerheecke 

 

De uitleg van @Steven-E is heel goed en correct. Indien je dus echt een leek bent en het uw interessedomein niet is (daar bedoel ik mee dat het voor u eigenlijk niet interessant is en je geen behoefte hebt om dat allemaal te leren) dan zou ik qua hardware de raad van @Steven-E opvolgen en voor de installatie een vriend of kennis (die er wel iets van kent) vragen om het zaakje te komen configureren. Dat gaat Telenet niet voor u doen.

 

Ik zou zeker de raad van @Steven-E opvolgen en de E-router (de CV8560E) vragen ipv een gewone HGW. Je gaat immers sowieso een eigen goede router aanschaffen, dan is een HGW voor niks nodig en zelfs hinderlijk.

 

Ik denk moest je hier een oproep doen dat je allicht een netweter uit uw streek zal vinden die u kan helpen.


   StefaanH | Krak
    De Gustibus et Coloribus non est disputandum.
      Vergeet niet om likes te geven en/of als oplossing te markeren.
StefaanH
Professional Superweter
Berichten: 5350
Dat verdient een trofee! Organisatietalent! Een echt antwoordkanon jij! Krak 2018

Thuisnetwerk aanbevelingen

@PeterVerheecke 

 

Nog een vraagje: je spreekt van 80 m² per verdieping. Maar je zegt er niet bij hoeveel muren / vertrekken / kamers er zijn per verdiep. Dat is ook belangrijk voor de WiFi, aangezien muren en staal het signaal sterk beïnvloeden. Heb je dus veel kleinere kamers op de verdieping bvb, zou het goed kunnen dat één AP niet voldoende gaat zijn om de hele verdieping te bedienen. Zeker niet in de 5 GHz.

Nu is het wel zo dat je niet meteen veel hardware moet gaan kopen. Je kan steeds beginnen met één AP per verdieping en uitbreiden nadien indien blijkt dat de dekking niet voldoende is, maar hou het in uw achterhoofd dat het mogelijk is.

 

Alleszins veel succes gewenst 🙂


   StefaanH | Krak
    De Gustibus et Coloribus non est disputandum.
      Vergeet niet om likes te geven en/of als oplossing te markeren.
0 Likes
PeterVerheecke
Professional Beetjesweter
Berichten: 8
Alles op zijn plek! Netjes! Mooi, mooi! Primeur!

Thuisnetwerk aanbevelingen

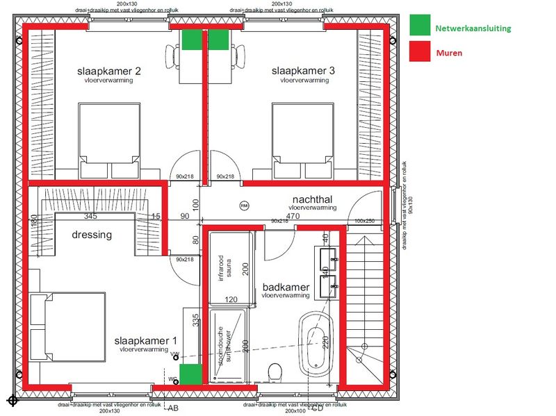
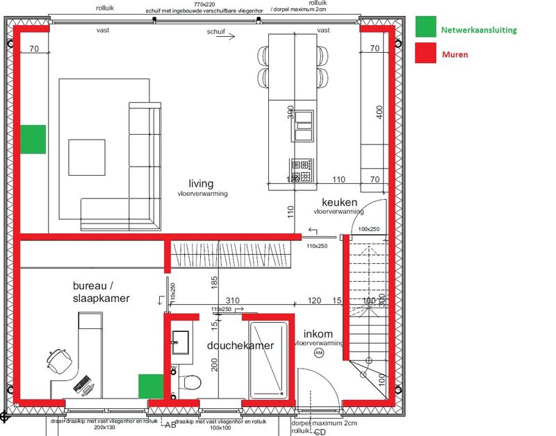
Indeling ruimtes

 

Netwerkaansluiting kelder:

3 ruimtes + traphal (3x6m / 3x3m / 6x9m)

Netwerkaansluiting kelderNetwerkaansluiting kelder

 

Netwerkaansluiting gelijkvloers:

3 ruimtes + gang (5x9m / 4x4m / 2x3m)

Netwerkaansluiting gelijkvloersNetwerkaansluiting gelijkvloers

 

Netwerkaansluiting 1ste verdieping:

4 ruimtes + gang (4,5x4m / 4,5x4m / 4,5x5m / 3x4m)

Netwerkaansluiting  1ste verdiepingNetwerkaansluiting 1ste verdieping

0 Likes
PeterVerheecke
Professional Beetjesweter
Berichten: 8
Alles op zijn plek! Netjes! Mooi, mooi! Primeur!

Thuisnetwerk aanbevelingen

Bedankt voor je antwoord Steven-E!

 

3a. Configureer 2 aparte SSID's (Ik zal eens opzoeken hoe ik dit moet doen)

3b. IOT apparaten hebben we ook vermoed ik:

      - Google Nest deurbel

      - 6 maal Google protect rookmelders

      - Somfy rolluikmotoren + Tahoma switch (zigbee)

        (dit voegen we dan toe op 2.4Ghz netwerk?)

      - 3 maal Philips Hue Bridge zigbee (1 per verdieping) voor de verlichting + schakelaars

        (dit voegen we dan toe op 2.4Ghz netwerk?)

4. Ik probeer dit via de verkregen link.

7. Omdat je zelf deze voorstelde? 

    https://www.netgear.com/business/wifi/access-points/wax214/

8. Zie indeling ruimtes in reply op StefaanH

    (aansluitingen liggen niet centraal helaas)

9. AccessPoints op een apart kanaal instellen (zal ik moeten opzoeken hoe ik dit moet doen)

10c. Tips voor een goede 24 poorts switch met minimum 6 POE+?

10d. Ik heb nog geen accesspoints en camera's, hoe kan ik dan de datasheets bekijken?

        Is dit online te vinden voor men deze aanschaft?

0 Likes
Janneke_Dust
Experienced Meesterweter
Berichten: 2642
Krak 2021 Krak 2022 Krak 2020 Vraagbaakkampioen!

Thuisnetwerk aanbevelingen

Hoe ver staat ge met de woning? Planning fase of liggen de kabels reeds.


Jean (Janneke Dust) | Krak
Hou het eenvoudig.
Vergeet niet om likes te geven en/of als oplossing te markeren.
0 Likes
StefaanH
Professional Superweter
Berichten: 5350
Dat verdient een trofee! Organisatietalent! Een echt antwoordkanon jij! Krak 2018

Thuisnetwerk aanbevelingen

@PeterVerheecke 

 

Als ik uw schema bekijk gaat het wel meevallen vermoed ik. De kelder is in ieder geval al geen probleem, het gelijkvloers zou ook zeker moeten werken met één AP. Enkel de bovenverdieping is afwachten wat de testen geven.

Ik zou persoonlijk het AP in slaapkamer 2 hangen. Dan het bereik testen in de andere kamers. Vermits het een nieuwbouw is zou het goed kunnen dat je niet op de hele verdieping bereik hebt, maar er is een kans dat het wel goed komt. 

 

Vermits je overal ethernetaansluiting hebt kun je desgewenst toch met mesh werken. Die keuze moet je zelf maken. De verschillende "torentjes" van een mesh of de verschillende AP's van een klassiek netwerk, die verschillen op zich niet zoveel van elkaar. Enkel de interactie tussen die "torentjes" is anders. Die babbelen met elkaar. Gewone AP's doen dat niet.


   StefaanH | Krak
    De Gustibus et Coloribus non est disputandum.
      Vergeet niet om likes te geven en/of als oplossing te markeren.
PeterVerheecke
Professional Beetjesweter
Berichten: 8
Alles op zijn plek! Netjes! Mooi, mooi! Primeur!

Thuisnetwerk aanbevelingen

@Janneke_Dust 

De kabels liggen er reeds.

Het is ook al gechaped en de muren en plafonds zijn ook reeds bepleisterd.

Kwa bekabeling kan er dus niets meer gewijzigd worden.

We kunnen wel nog niets aansluiten (enkel kabels in wachtdozen hebben we)

0 Likes
PeterVerheecke
Professional Beetjesweter
Berichten: 8
Alles op zijn plek! Netjes! Mooi, mooi! Primeur!

Thuisnetwerk aanbevelingen

@StefaanH 

Bedankt voor de tips voor de plaatsing van de Accesspoint en de Mesh aanbeveling!

JV6
Freshman Beetjesweter
Berichten: 1
Pageturner! Gelezen en goedgekeurd! De kop is eraf! Hi there!

Thuisnetwerk aanbevelingen

Als switch kan ik zeker het merk Mikrotik aanbevelen. De switch is zowel via CLI als via een webinterface te configureren (de webinterface ziet er wel gedateerd uit maar is functioneel wel in orde). Je kan dit echter gewoon negeren en het als "dumb" switch gebruiken. 
MikroTik Routers and Wireless - Products: CRS328-24P-4S+RM
Deze heeft 24 POE poorten die max 30W kunnen geven met dan ook 4 SFP+ poorten voor moest je uiteindelijk een apparaat met 10Gbe willen aansluiten. Voor +- 380 euro is dit de meest veelzijdige switch met POE enkel POE poorten.

Je zou ook moest je niet op elke kabel POE nodig hebben een goedkoper model met minder poorten kunnen kopen voor uw POE toestellen en dan een andere switch voor de gewone data:
https://mikrotik.com/product/crs112_8p_4s_in

https://mikrotik.com/product/CSS326-24G-2SplusRM
(+- 310 euro) maar je verliest 2 SFP+ poorten

 


Succes!

 

0 Likes
PeterVerheecke
Professional Beetjesweter
Berichten: 8
Alles op zijn plek! Netjes! Mooi, mooi! Primeur!

Thuisnetwerk aanbevelingen

@JV6 Thnx voor de aanbevelingen!

0 Likes